快猫成人app下载污,成人快猫官网,快猫APP成人下载,成人快猫短视频污网址

智能楼宇自控系统集成目标的确定!

栏目:行业动态 作者:快猫成人app下载污智能化 发布时间:2020-04-23 关键词: 智能楼宇自控系统
分享到:
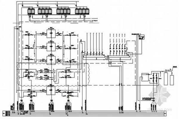
智能楼宇自控系统的建立,首先需要确定集成目标,而目标是否科学合理,对楼宇自控系统的建立具有决定性意义。在智能楼宇自控系统的具体施工中,经常会出现目标评价标准不统一,或是目标不明确的情况,进而导致承包方与业主出现严重的分歧,甚至出现工程返工的情况,这造成了施工时间与资源的大量浪费,给承包方造成了大量的经济损失,同时业主的居住体验和楼宇自控系统的系统性能价格比也会直线下降,并且业主的投资也未能得到相应的回报。

智能楼宇自控系统的建立,首先需要确定集成目标,而目标是否科学合理,对楼宇自控系统的建立具有决定性意义。在智能楼宇自控系统的具体施工中,经常会出现目标评价标准不统一,或是目标不明确的情况,进而导致承包方与业主出现严重的分歧,甚至出现工程返工的情况,这造成了施工时间与资源的大量浪费,给承包方造成了大量的经济损失,同时业主的居住体验和楼宇自控系统的系统性能价格比也会直线下降,并且业主的投资也未能得到相应的回报。

智能楼宇自控系统集成目标的确定!

相关学者廖了以认为:智能楼宇自控系统集成目标要充分体现操作性、方向性和及物性的特点。其中,操作性是决策活动中提出的控制策略,能够影响与目标相关的事件,促使其向目标方向靠拢。方向性是目标对相关事件的未来活动进行引导,实现策略的合理选择。及物性是指与目标相关或是目标能直接涉及的一些事件,并为决策提供依据。


网站地图